La teva nova llar. La teva nova vida
Vilablareix
Cases adossades d’obra nova a Vilablareix
Promoció de 3 cases adossades a Vilablareix, amb més de 150 m² útils, habitatges amb garatge i jardí privat, ubicades en una zona excel·lent al centre del municipi, a només 5 minuts a peu del camp de futbol, amb espais amplis i funcionals pensats per al confort.
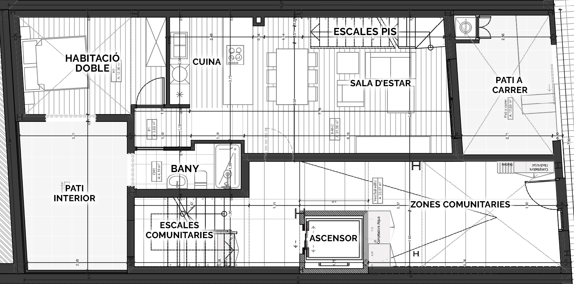
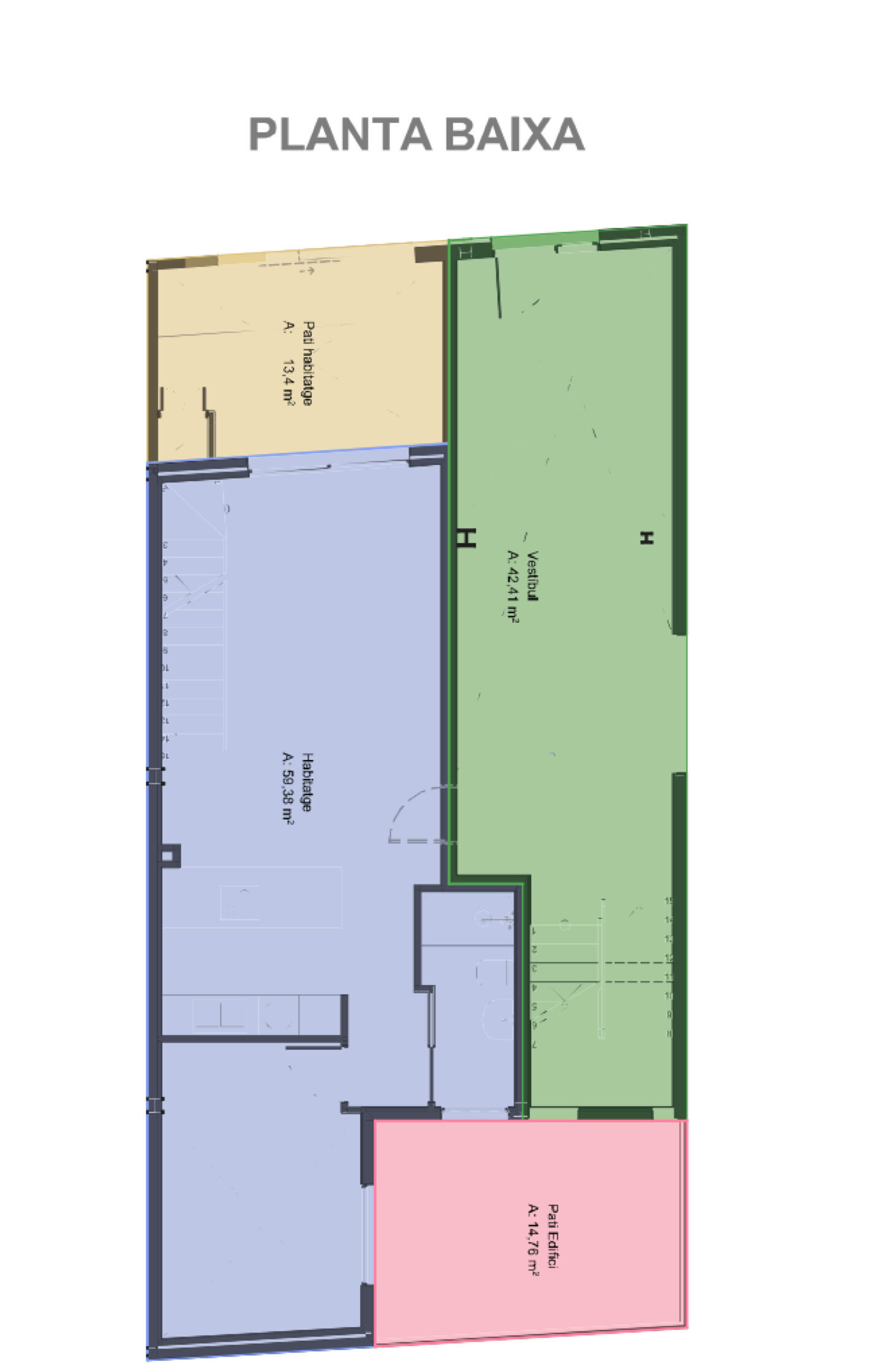
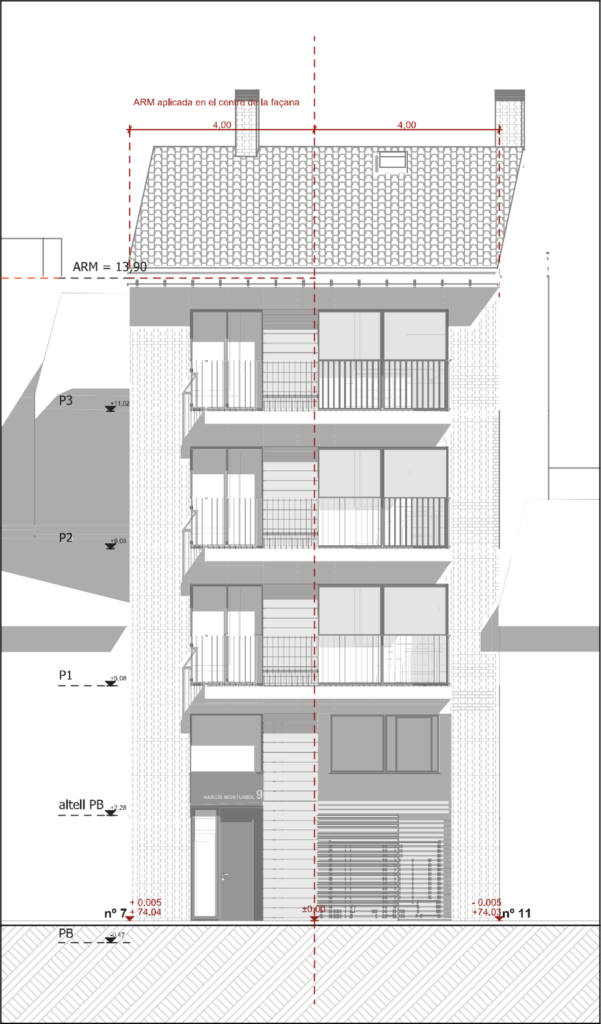
Carrer Narcís Monturiol 9
Edifici residencial d’obra nova a Narcís Monturiol
Promoció d’edifici, amb més de 600 m² construïts, distribuït en diverses plantes, amb habitatges amplis, zones comunes, espais exteriors i un disseny arquitectònic modern, que inclou diferents nivells amb altells, coberta inclinada i espais optimitzats per al confort.
para guardar tus casas favoritas y más
Log in with emailDon't have an account? Sign up
Enter your email address and we will send you a link to change your password.
para guardar tus casas favoritas y más
Sign up with emailAlready have an account? Log in
Realitzem una anàlisi completa del mercat: preus, demanda, característiques del barri, estat de l’immoble i potencial real de venda.
La nostra valoració és honesta, precisa i basada en dades, per vendre en el menor temps possible i al preu adequat.
Coneix el nostre servei de valoració:
Sabem que la primera impressió és decisiva. Per això preparem el teu habitatge perquè destaqui per sobre de la resta:
El teu immoble no només es publica: es presenta com un producte de gran valor.
Vols veure com publiquem?
Cada immoble té un pla de màrqueting únic que inclou:
Més visibilitat = més leads i més oportunitats de venda.
Recomanació externa:
Google ofereix una guia oficial sobre bones pràctiques en màrqueting digital que apliquem a les nostres campanyes:
Coordinem, realitzem i ens ocupem de tot:
Només et presentem compradors reals, solvents i preparats per comprar. Després de cada visita, informem la propietat amb transparència sobre l’interès real del comprador i el progrés comercial.
Defensem els teus interessos en tot moment.
El nostre objectiu és clar: negociem el preu, les condicions i els terminis, sempre amb l’objectiu de tancar l’operació en les millors condicions.
Gestionem tota la part legal i documental:
Compra, ven i lloga amb tranquil·litat, seguretat i sense sorpreses.
A Finques Cànoves creiem en l’honestedat, la claredat i el tracte humà.
Estaràs informat en tot moment de l’estat de la teva operació.
Perquè el teu immoble està en les millors mans.
Realizamos un análisis completo del mercado: precios, demanda, características del barrio, estado del inmueble y potencial real de venta.
Nuestra valoración es honesta, precisa y basada en datos, para vender en el menor tiempo posible y al precio adecuado.
Conoce nuestro servicio de valoración:
Sabemos que la primera impresión es decisiva. Por eso preparamos tu vivienda para destacar por encima del resto:
Tu inmueble no solo se publica: se presenta como un producto de alto valor.
¿Quieres ver cómo publicamos?
Cada inmueble tiene un plan de marketing único, que incluye:
Más visibilidad = más leads y más oportunidades de venta.
Recomendación externa:
Google ofrece una guía oficial sobre buenas prácticas en marketing digital que aplicamos en nuestras campañas:
Coordinamos, realizamos y nos ocupamos de absolutamente todo.
Solo te presentamos compradores reales, solventes y preparados para comprar. Tras cada visita, informamos a la propiedad con transparencia sobre el interés real del comprador y el progreso comercial.
Defendemos tus intereses en todo momento.
Nuestro objetivo es claro: Negociamos el precio, condiciones y plazos, siempre con el objetivo de cerrar la operación en las mejores condiciones.
Gestionamos toda la parte legal y documental:
Compra, vende y alquila con tranquilidad, seguridad y sin sorpresas.
En Finques Cànoves creemos en la honestidad, la claridad y el trato humano.
Estarás informado en todo momento del estado de tu operación.
Porque tu inmueble está en las mejores manos.
Plaça del Lleó

Plaça del Lleó

Montjuic

Casernes

Montjuic

Fontajau

Text Exemple

La plaça del Lleó de Girona és un punt de pas molt conegut situat a l’entrada del centre de la ciutat. Rep el nom d’una antiga font amb una figura de lleó, avui un símbol popular. És una zona amb molt de moviment, envoltada de comerços i connectada amb vies importants, fet que la converteix en un espai clau per accedir tant al Barri Vell com a altres parts de Girona. Tot i ser una plaça funcional i molt transitada, forma part del paisatge quotidià de la ciutat.

El Barri Vell de Girona és el nucli històric de la ciutat i un dels seus espais més emblemàtics. Hi destaquen les muralles medievals, perfectament conservades, i la impressionant Catedral de Santa Maria, famosa per tenir una de les naus gòtiques més amples del món. Passejant pels seus carrers estrets empedrats es poden descobrir racons com el call jueu, un dels millor preservats d’Europa, així com la Rambla i les cases de colors sobre l’Onyar, icones de la ciutat. És un barri ple d’història, encant i arquitectura que manté viva l’essència medieval de Girona.
